Have any questions?
+44 1234 567 890
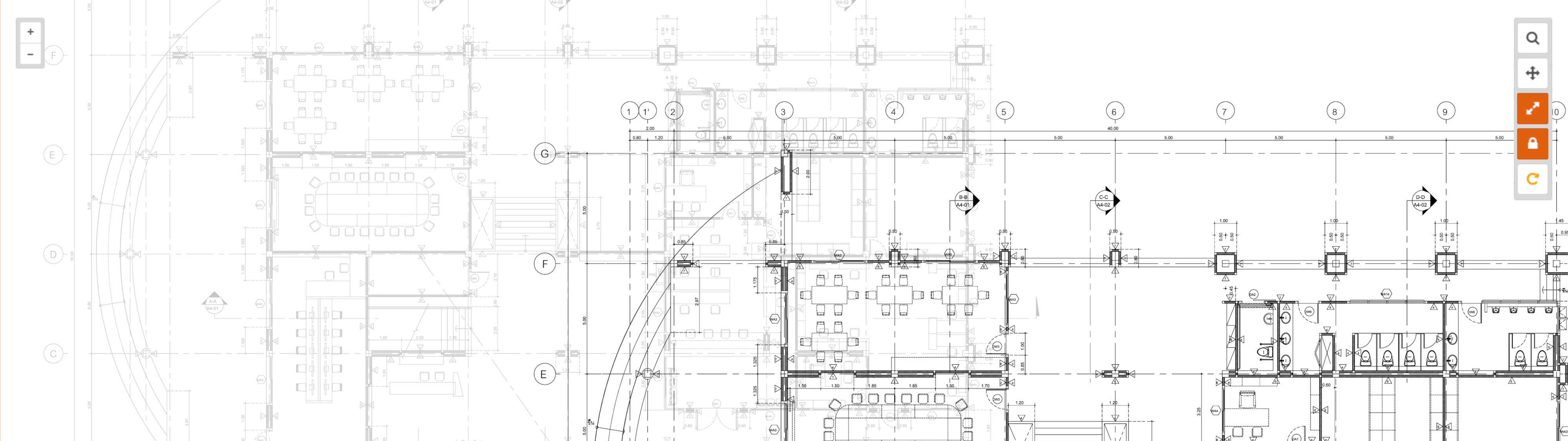
Use Case
«Planverortung»
Was ist Planverortung?
Planverortung verbindet Pläne und Aufgaben in einem zentralen, digitalen Arbeitsbereich. Pläne wie Bauzeichnungen oder Layouts können direkt im System hinterlegt und mit offenen Pendenzen verknüpft werden. Diese Aufgaben lassen sich visuell auf dem Plan markieren, Verantwortlichen zuweisen und bis zum Abschluss nachverfolgen. So entsteht eine klare Übersicht, welche Arbeiten wo anfallen und in welchem Status sie sich befinden. Das Ergebnis: mehr Transparenz, weniger Missverständnisse und eine effizientere Projektabwicklung.
Die Kernfunktionen der Planverortung
Pläne verwalten
Pläne werden direkt in PRIMADOCA gespeichert, versioniert, revisionssicher abgelegt und Projekten zugeordnet.
Markierungen setzen
Nutzer können Orte im Plan mit Pins oder Symbolen markieren und Zusatzinformationen hinterlegen.
Mängel verknüpfen
Platzieren Sie Mängel oder Pendenzen an eine Planposition.
Parallele Bearbeitung
Mehrere Nutzer können gleichzeitig im Plan arbeiten und Änderungen werden in Echtzeit synchronisiert.
Versionshistorie
Alle Änderungen sind nachvollziehbar und ältere Planversionen bleiben abrufbar.
Integration
Die Planverortung ist nahtlos in den PRIMADOCA-Modulen wie bspw. DMS, Todo-Management etc. eingebunden.
Effiziente Zusammenarbeit
durch flexible Berechtigungssysteme
Die Planverortung in PRIMADOCA ermöglicht es, Projekte teamübergreifend zu bearbeiten und gleichzeitig den Zugriff gezielt zu steuern. Dank eines flexiblen Berechtigungssystems können Rollen und Rechte individuell vergeben werden, sodass jede Person genau die Informationen sieht und bearbeitet, die für sie relevant sind.
Dies schafft Transparenz, schützt sensible Daten und erleichtert die parallele Zusammenarbeit verschiedener Fachbereiche. Änderungen und Kommentare werden in Echtzeit synchronisiert, was eine nahtlose Kommunikation und effiziente Abstimmung im gesamten Projektteam gewährleistet.
Qualität steigern. Zeit & Kosten sparen.
Mit der Planverortung in PRIMADOCA sparen Sie wertvolle Zeit und optimieren Ihre Abläufe durch eine zentrale Verwaltung aller Pläne und Informationen. Die direkte Verknüpfung von Aufgaben und Dokumenten beschleunigt die Zusammenarbeit und minimiert Fehlerquellen. Für die Nutzung ist eine PRIMADOCA-Lizenz erforderlich.


